Levantamiento de Planos
Realizo el levantamiento completo de tu vivienda o local, midiendo cada estancia para crear un plano profesional actualizado. Entrega rápida en AutoCAD y PDF, listo para reformas, proyectos técnicos o inmobiliarias.
Medición precisa
Plano acotado
Entrega en DWG + PDF
24–48h
¿Qué incluye el levantamiento de planos?
El servicio de levantamiento de planos incluye todo lo necesario para obtener un plano técnico actualizado de tu vivienda o local:
- ✓Visita al inmueble y medición completa
- ✓Plano del estado actual
- ✓Acotación detallada
- ✓Representación de muros, puertas, ventanas y mobiliario fijo
- ✓Entrega en formatos AutoCAD (.dwg) y PDF
- ✓Revisiones incluidas
¿Para qué sirve un levantamiento de planos?
Un levantamiento de planos es esencial para cualquier proyecto técnico o reforma. Permite:
- •Pedir presupuestos de obra con precisión
- •Realizar una redistribución correcta
- •Elaborar proyectos de arquitectura o ingeniería
- •Tramitar documentación técnica
- •Preparar licencias o informes
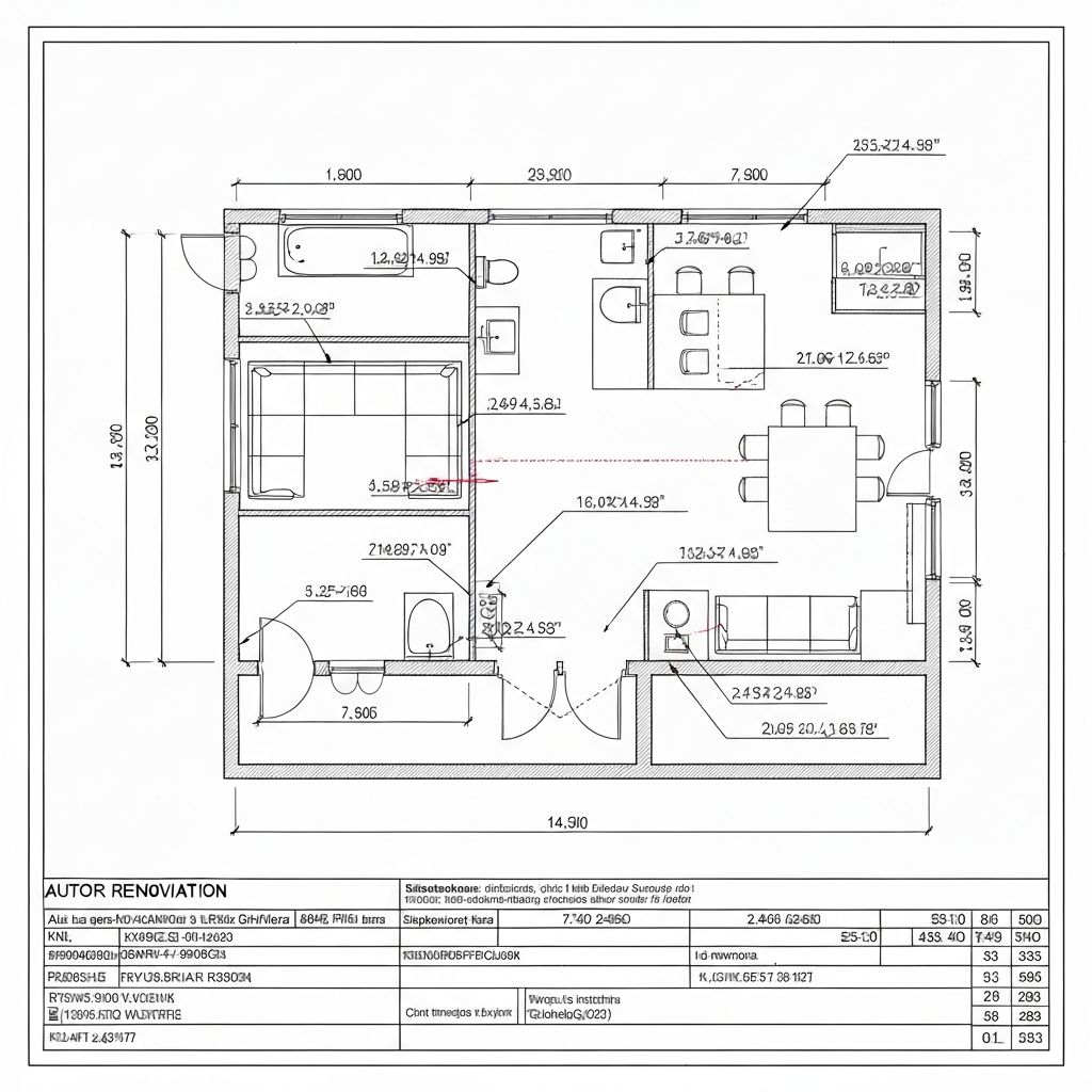
Ejemplos de Levantamientos Realizados
Aquí puedes ver ejemplos reales de levantamientos de planos que he realizado para mis clientes.

Levantamiento estado actual

Plano acotado detallado

Medición completa vivienda

Plano profesional acotado
¿Necesitas un levantamiento de planos profesional?
Rellena el formulario de contacto y te preparo un presupuesto detallado.
Ir al formularioSolicita tu presupuesto sin compromiso
Rellena el formulario y te responderé lo antes posible
¿Necesitas un plano? Te preparo un presupuesto hoy.
Cuéntame tu proyecto y te respondo con un presupuesto claro en menos de 24 horas.